︎
Pelletier de Fontenay
Index
Selected
Information
Pelletier de Fontenay
︎
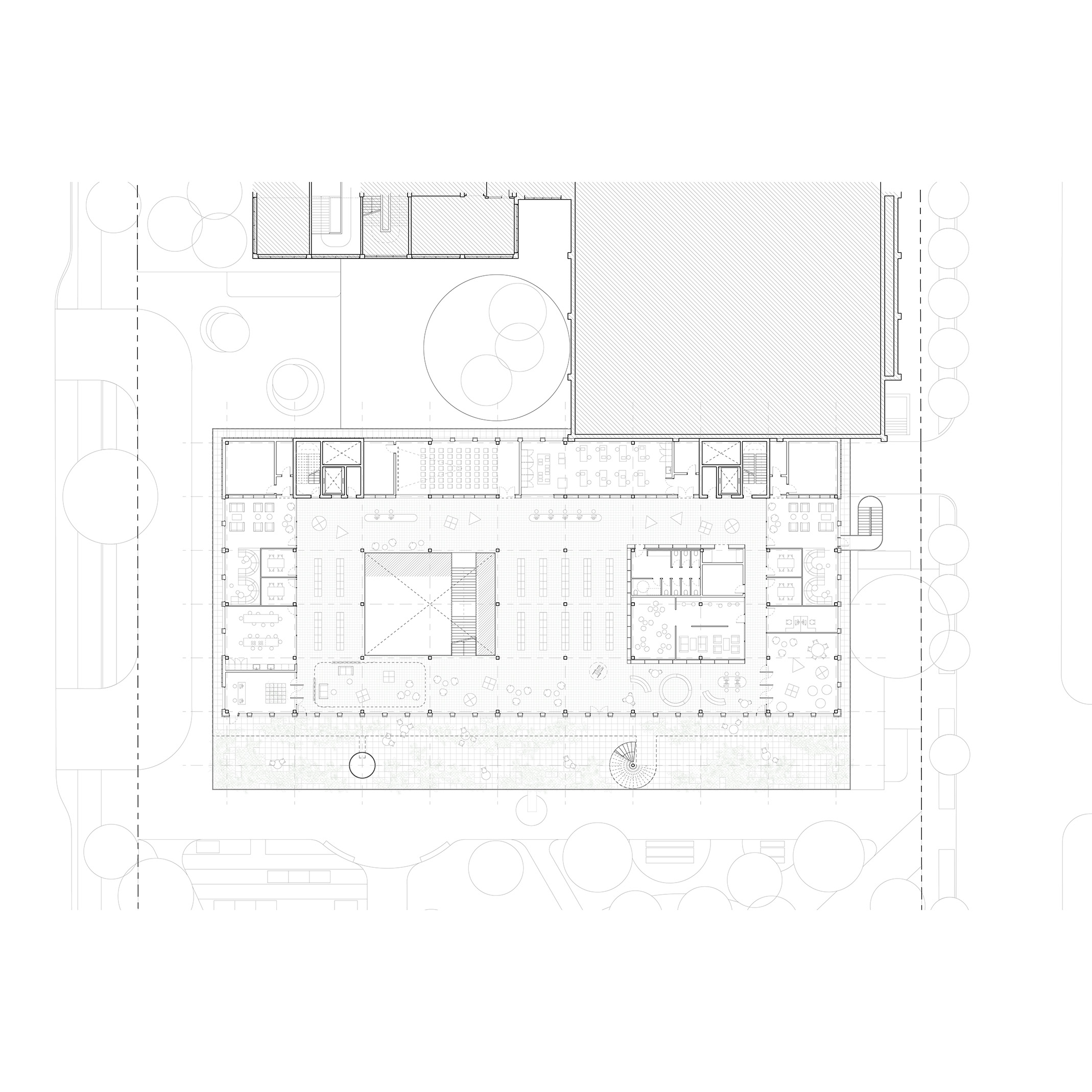
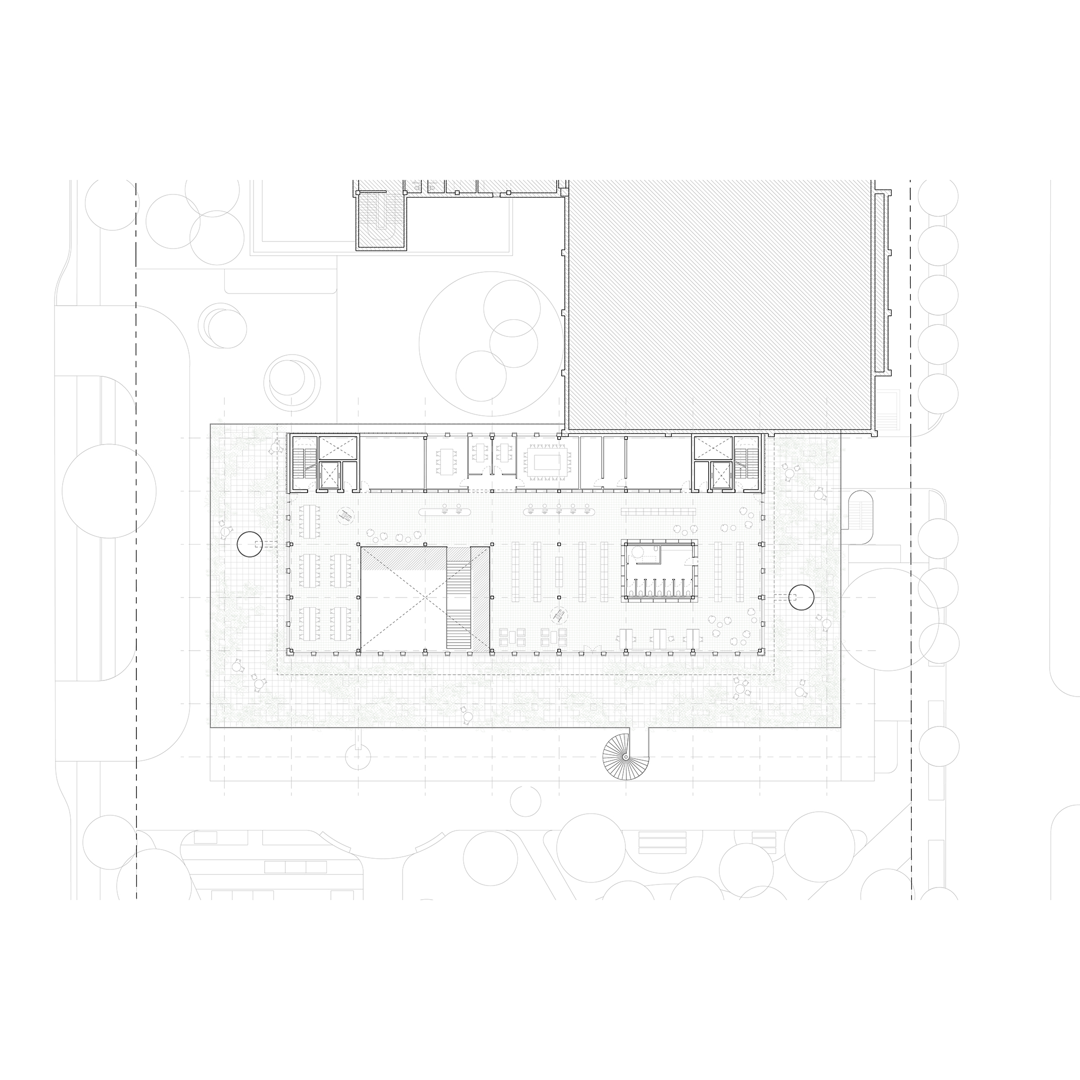
Bibliothèque Villeray
+ Details