︎
Pelletier de Fontenay
Index
Sélection
Information
Pelletier de Fontenay
︎
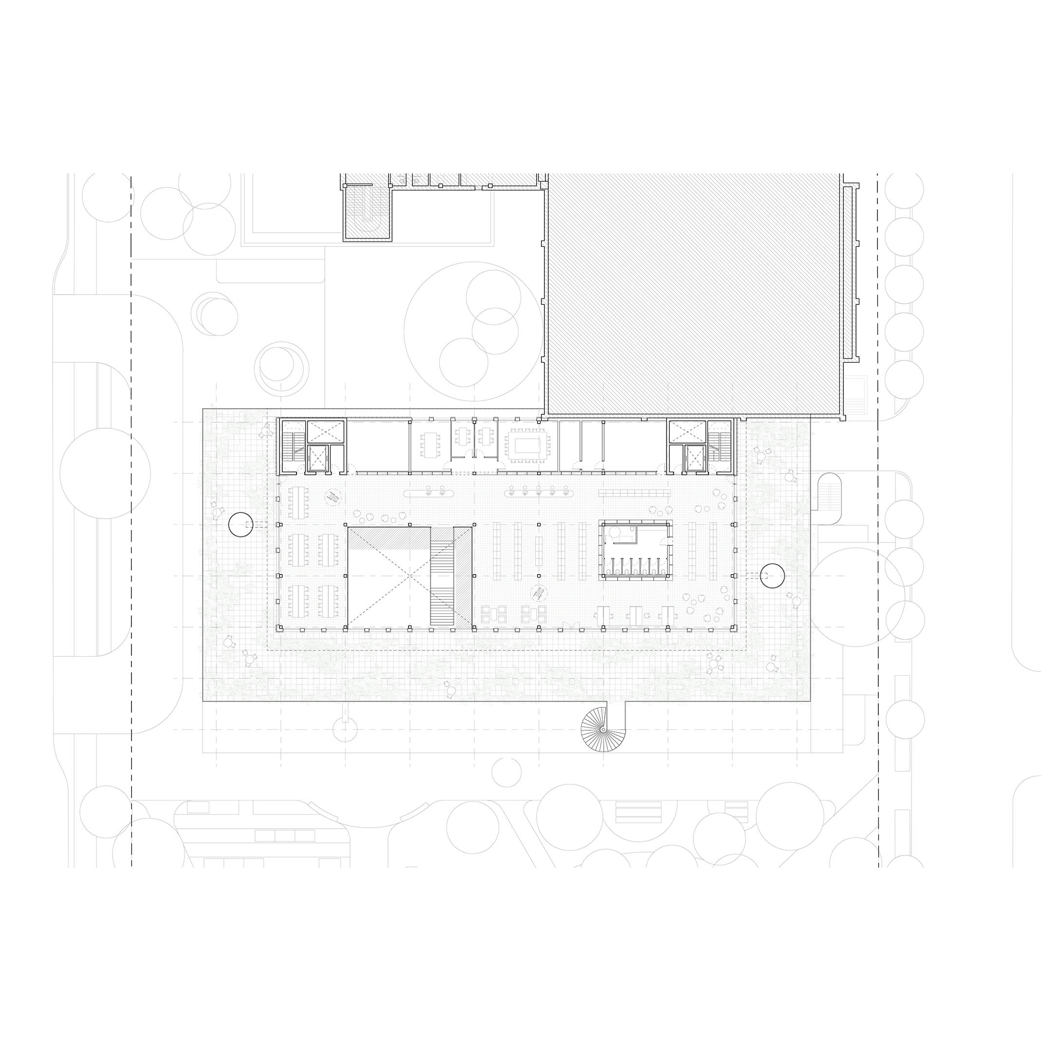
Bibliothèque Villeray
+ Détails