︎
Pelletier de Fontenay
Index
Sélection
Information
Pelletier de Fontenay
︎
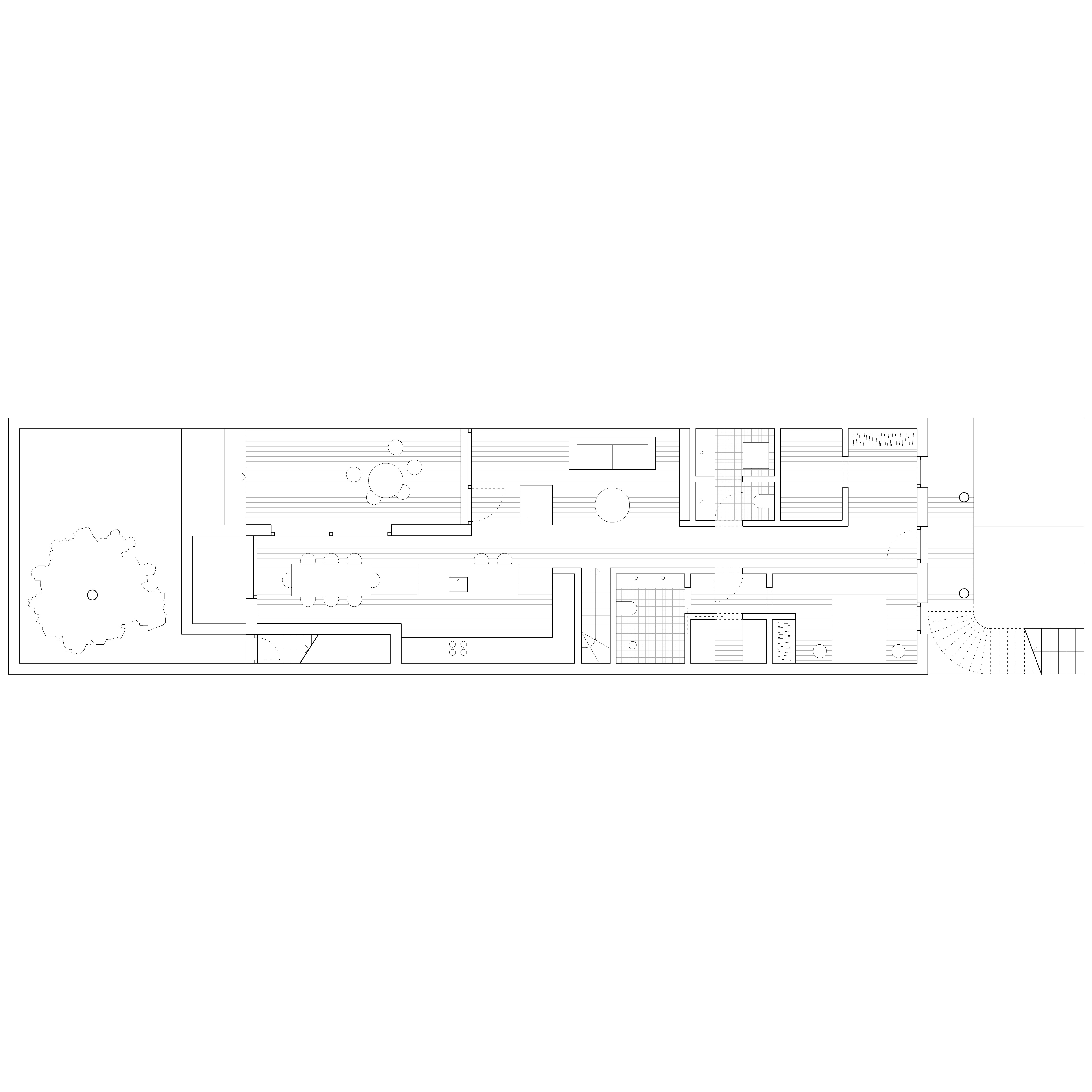
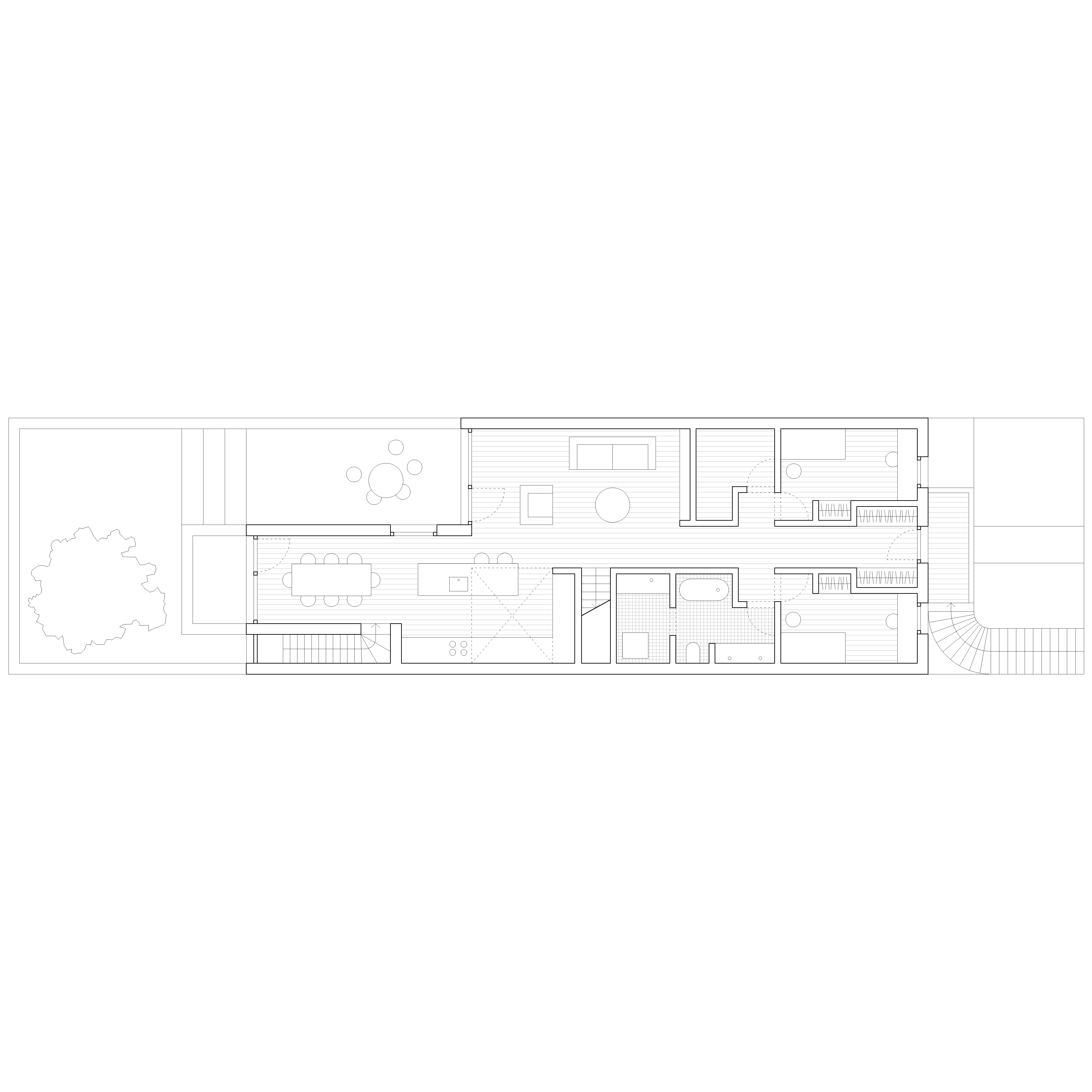
Logements Chateaubriand
+ Détails