︎
Pelletier de Fontenay
Index
Selected
Information
Pelletier de Fontenay
︎
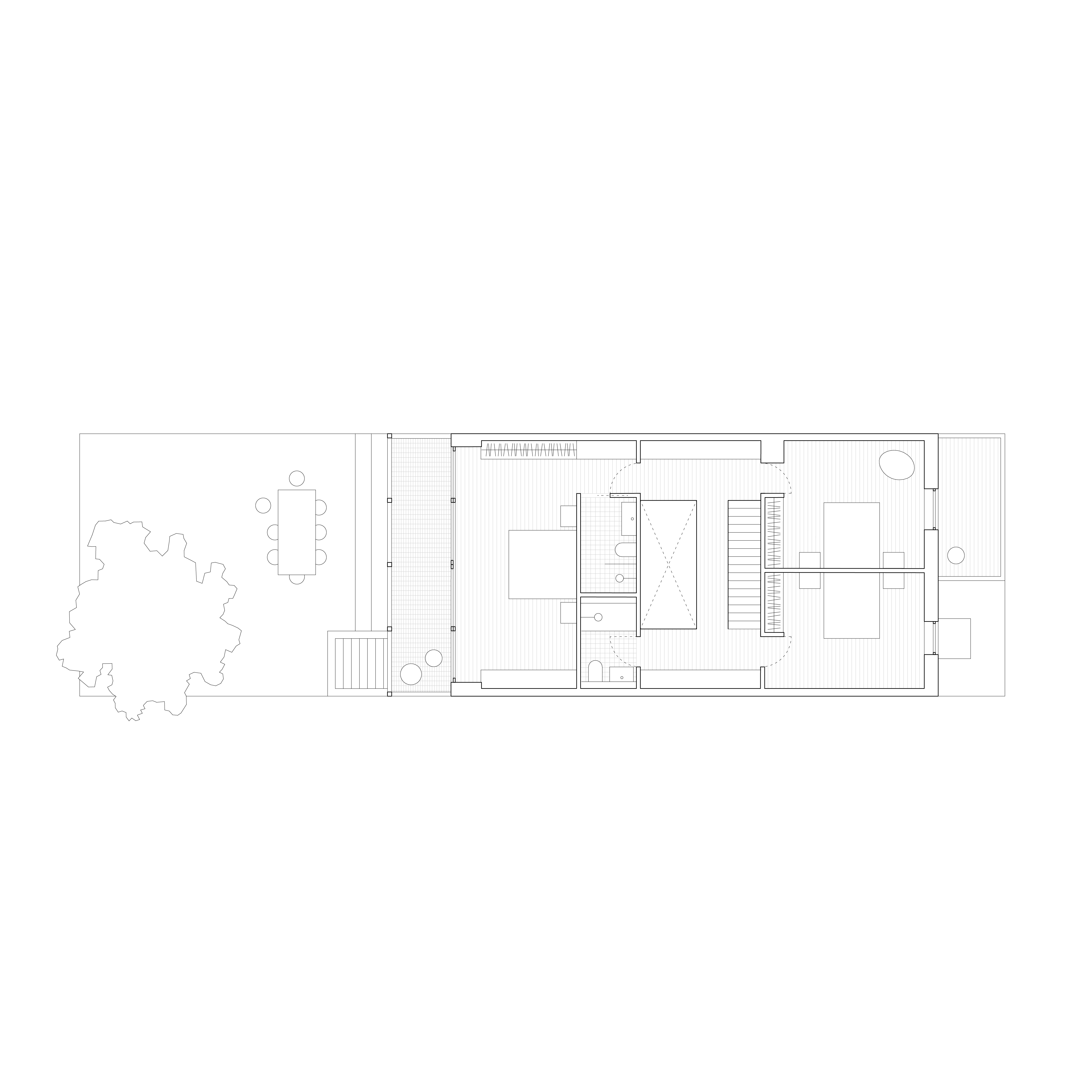
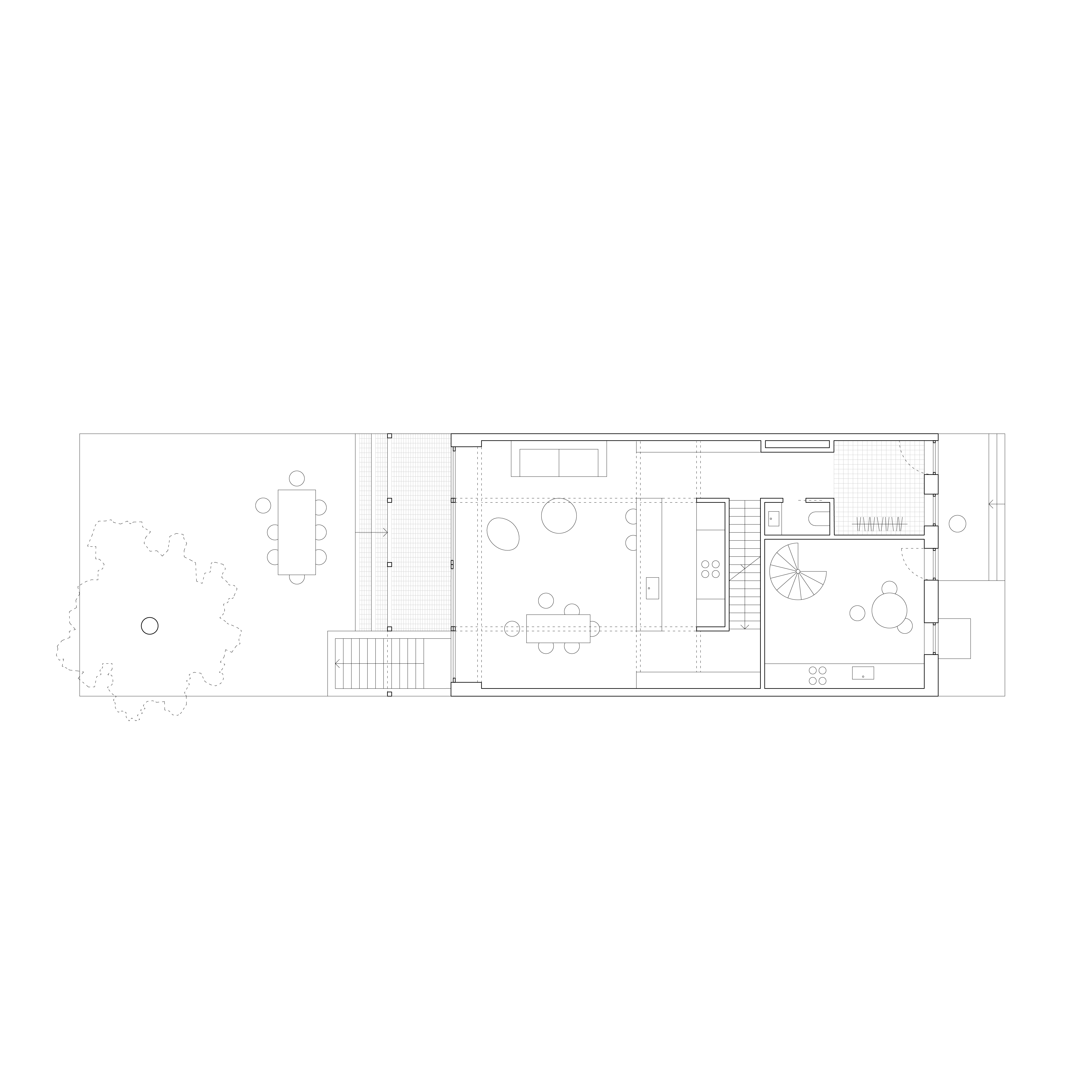
Résidence Clark
+ Details