︎
Pelletier de Fontenay
Index
Selected
Information
Pelletier de Fontenay
︎
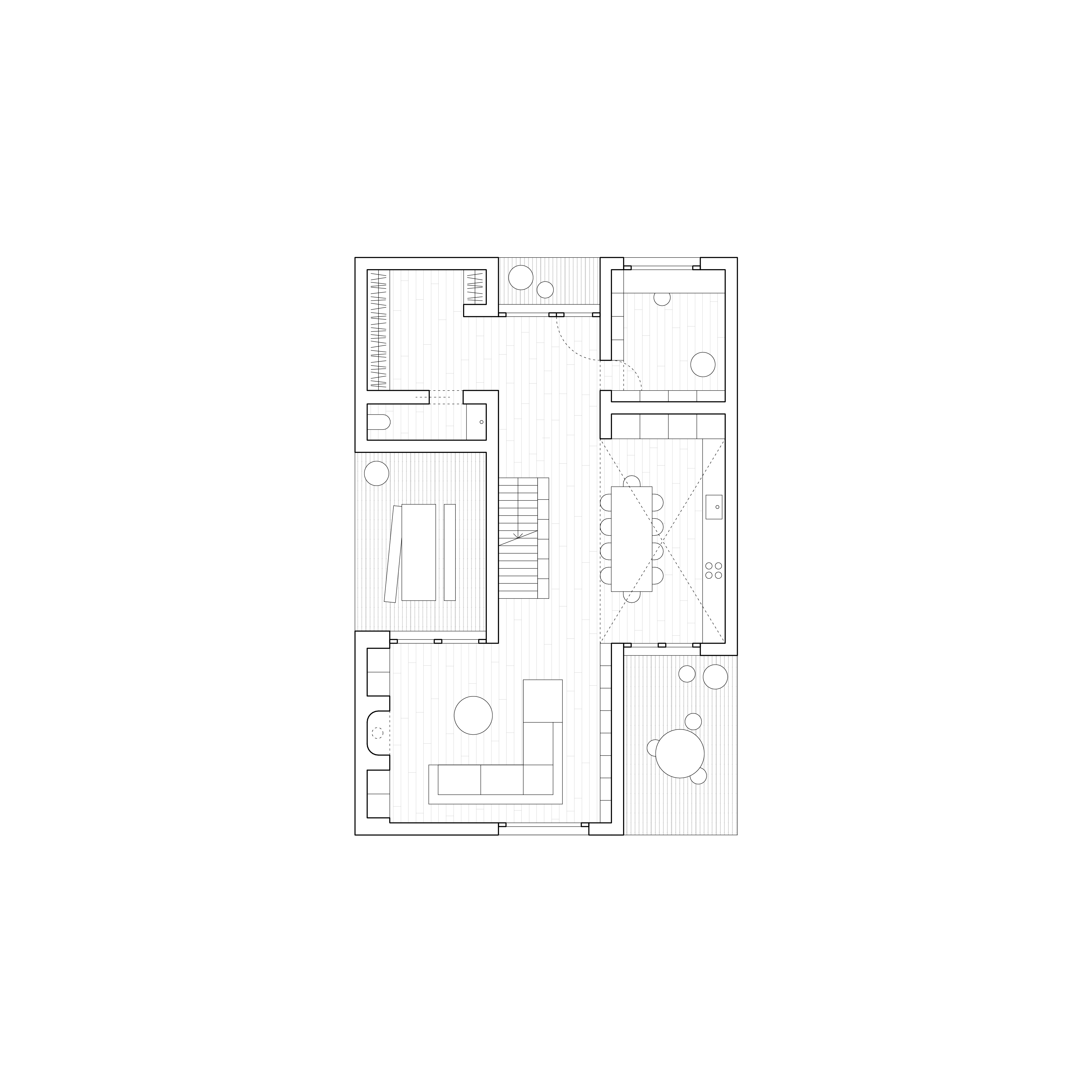
Résidence de la Chapelle
+ Details