︎
Pelletier de Fontenay
Index
Sélection
Information
Pelletier de Fontenay
︎
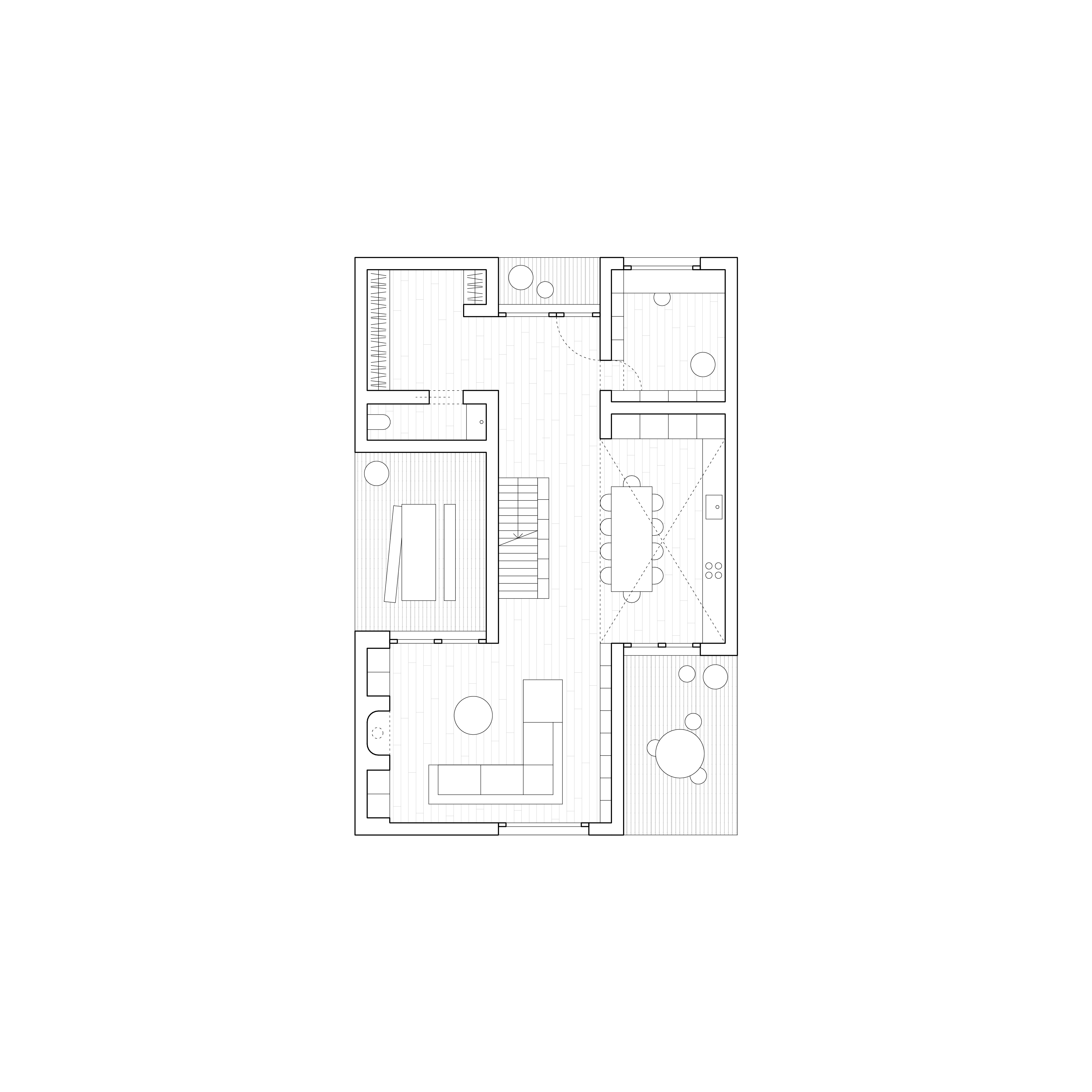
Résidence de la Chapelle
+ Détails