︎
Pelletier de Fontenay
Index
Sélection
Information
Pelletier de Fontenay
︎
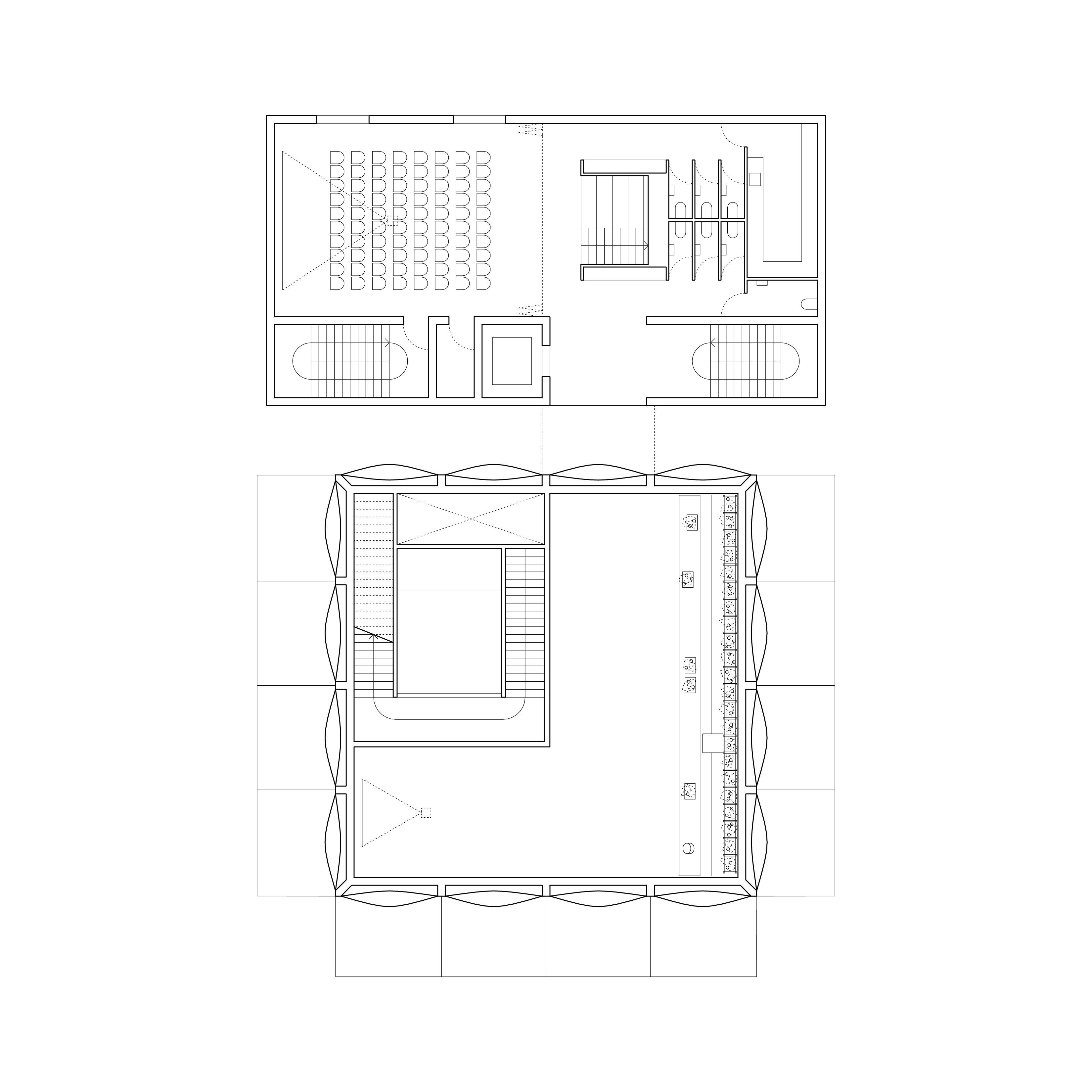
Swiss Pavilion Osaka Expo 2025
+ Détails