︎
Pelletier de Fontenay
Index
Selected
Information
Pelletier de Fontenay
︎
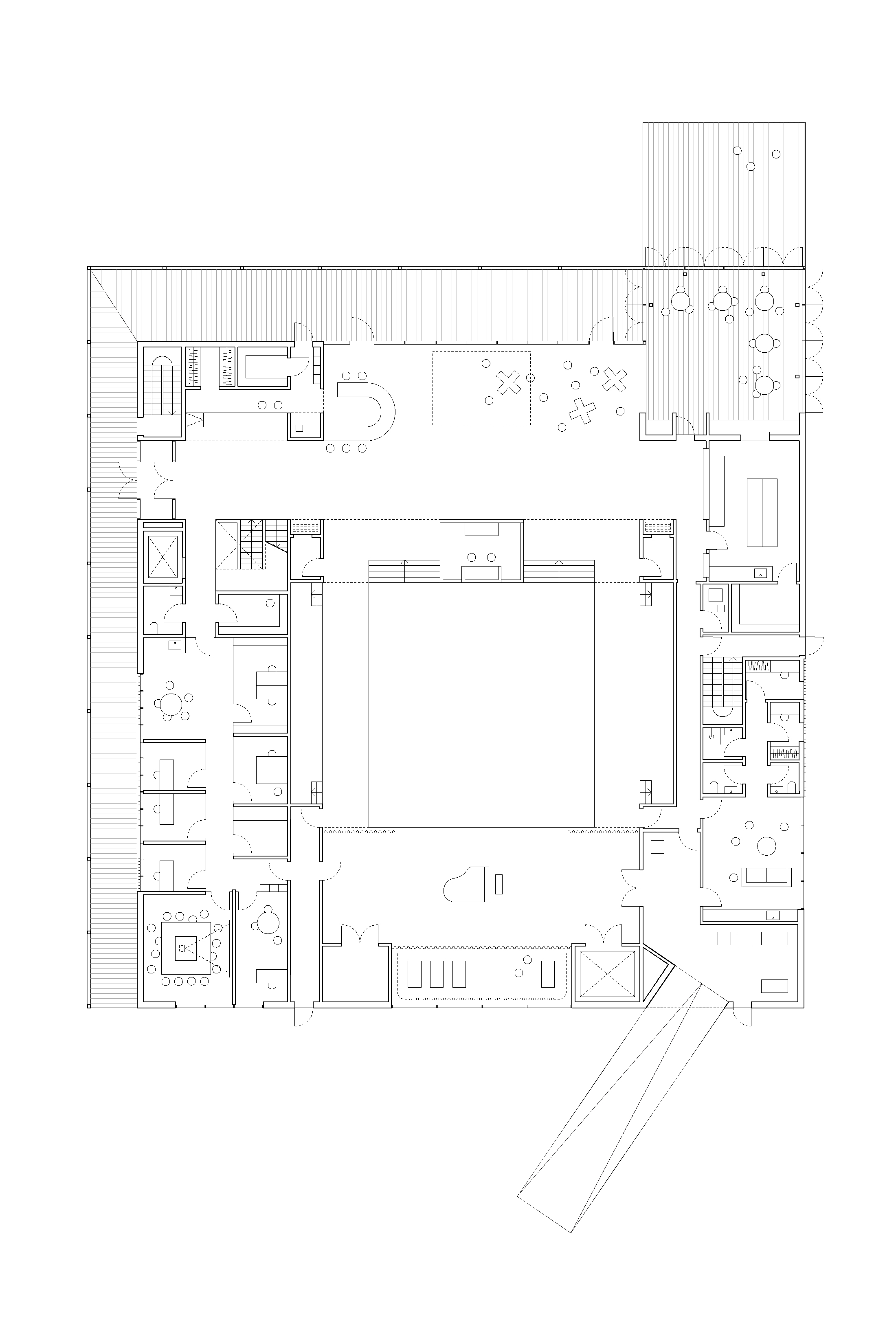
Théâtre de la Vieille Forge
+ Details